Leben und Wohnen im Fabrikschloss
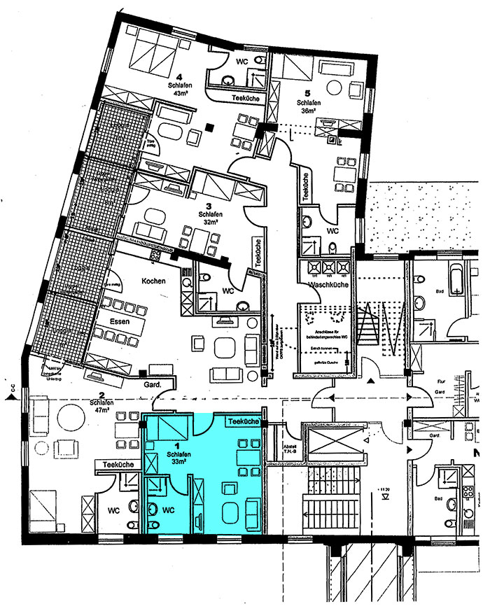
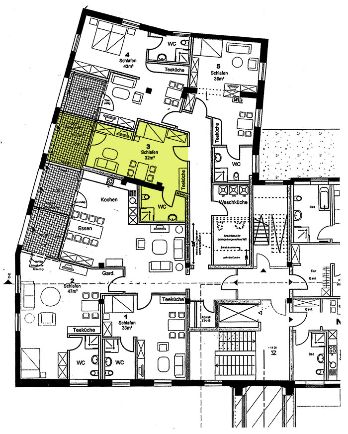
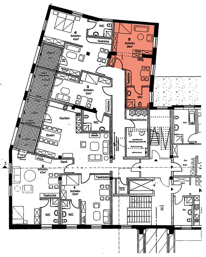
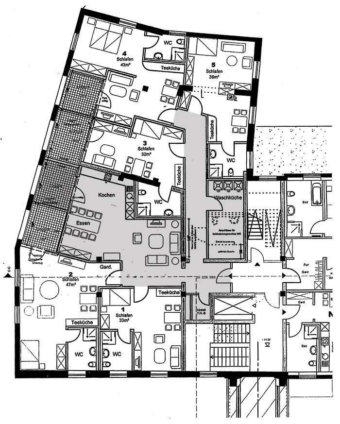
„Traumhaft schöne Apartments für Senioren im Fabrikschloss.“ Wenn das eigene Haus zuviel wird und Sie trotzdem noch zu fit sind fürs Altenheim, haben wir die Lösung! Im neuen Fabrikschloss Krawinkel II in Bergneustadt sind einige barrierefreie Apartments entstanden. Alle Wohn-Schlafräume sind inklusive der anteiligen Allgemeinflächen zwischen 51 m² und 68 m² groß.
Alle verfügen über eine Küchenzeile und Badezimmer. Die Apartments sind zu einer großen Senioren-WohnGemeinschaft zusammengefügt, die neben einem sonnigen Wintergarten mit traumhafter Aussicht und einen sehr großzügigen Wohn- und Essbereich mit schöner Gemeinschaftsküche verfügt. Ein Hauswirtschaftsraum mit Waschmaschine und Trockner gehört ebenfalls zur Ausstattung.
Individuell zugeschnittene Lebensbereiche
Die gesamte Senioren-WG ist mit hochwertigem Parkett und Fußbodenheizung ausgestattet. Ebenerdig und ohne Barrieren kommen Sie vom Marktplatz aus mit einem Aufzug direkt in Ihre Wohnung über den Dächern von Bergneustadt.
Das Gebäude liegt mitten im neugestalteten Zentrum von Bergneustadt. Im Objekt selbst befinden sich Allgemeinärzte, ein Zahnarzt, ein Sanitätshaus und ein Pflegedienst. Neben an die Apotheke, ein Lebensmittelmarkt sowie ein Feinkostladen. Bäcker und Cafés liegen ebenfalls in unmittelbarer Nähe. Der Busbahnhof und das Rathaus sind weniger als 100 Meter entfernt. Nutzen Sie die einmalige Chance auf „beste Wohnlage“ in Bergneustadt!
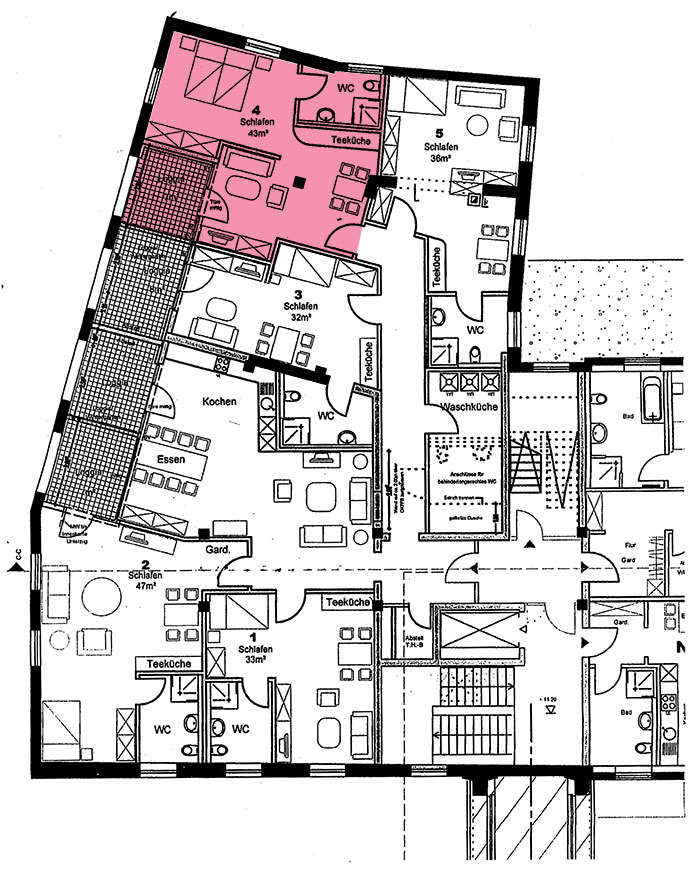
Apartment Nr. 4
Größe: 43 m² vermietet
Ausstattung: Großzügiger, heller Raum mit Möglichkeit zur Raumtrennung, Parkett Fußboden, hoch wärmeisoliert, eigenes barrierefreies Bad mit Tageslicht, Teeküche, direkter Zugang zum eigenen Balkon auf der Südseite, deutliche Raumtrennung zwischen Wohn- und Schlafbereich.
Gemeinschafts- bereich
Größe: ca. 40 m²
Ausstattung: Lichtdurchfluteter Wohn-/Essbereich mit großer WG- Küche und Luxusmöblierung. Parkett Fußboden, hoch wärmeisoliert, direkter Zugang zum Balkon auf der Südseite, durch die offene Bauweise, sind alle Wohnungen optimal integriert. Große Gemeinschaftswaschküche mit Waschmaschinen und Trockner zur allgemeinen Nutzung.
Gerne beantworten wir Ihre Fragen
und stehen für Besichtigungen jederzeit zur Verfügung!
Ihre Ansprechpartner: B. & B. Erbach, Jahnstr. 10 | 51702 Bergneustadt
Fon: 02261/48806 | eMail: info@senioren-wg-bgn.de
















































